

南昌汉代海昏侯国遗址位于南昌市新建区铁河乡、大塘坪乡内,背靠九领山脉和西山山脉,东临赣江,西依鄱阳湖,向北与永修吴城镇相距约 20 公里,向南距南昌城区约 60 公里。遗址由海昏侯国国都紫金城城址、海昏侯刘贺墓园、城址西部及南部墓葬群组成,是中国目前发现的面积最大、保存最好、格局最完整、内涵最丰富的典型汉代列侯国都城聚落遗址,被列入全国重点文物保护单位名录。遗址公园建设被列入国家“十四五”规划纲要,是江西省“文化强省”的重要举措,也是南昌市重点打造的文化“新名片”。

▲地形总图

▲总平面图
遗址博物馆用地面积118802㎡,总建筑面积39250㎡,其中地上两层,建筑面积31465㎡,地下一层,建筑面积7785㎡;容积率0.29,建筑密度16.35%,绿地率57.62%(含水体);建筑高度18m,屋面突出物最高点23.7m。
遗址博物馆的设计以考古研究为依据,以遗产价值为导向,以真实性、完整性、永续传承、多方受益四项原则为指导,遵循世界遗产保护公约与遗址保护规划中确立的对场地原有地形地貌进行“整体保护”与“最小干预”原则,最大限度与遗址环境的岗地、水系及反映先民生活、生产的农耕环境相协调,通过地形学的设计路径,塑造大地景观,将博物馆的形体空间复归于大遗址的风土地脉中。

▲博物馆整体鸟瞰 ©姚力
遗址博物馆综合容纳了展示陈列、文化交流、文物库藏、考古研究、管理服务、后勤设备六大板块的功能;通过嵌藏于地形并喻显汉文化特征的“虬龙潜野”形态和分区清晰、动线流畅的空间组织,为海昏侯国遗址与文物的展示、馆藏、研究和交流提供设施先进、功能完备的一流场馆,为中华传统文化的保护、传承和光扬构筑又一处标志性、开放性的公益场所。

▲博物馆整体鸟瞰 ©姚力
自然历史的地形学阐释


汉代海昏侯国遗址位于南昌城区以北约60公里,鄱阳湖西岸,赣江、锦江、修水与各条支流冲刷出丘陵低岗,间或浮移层叠的农耕田垄,绵长的自然进程蚀刻出丰富的自然斑块与历史地貌。在这个静谧而延绵的冲积丘陵中隐藏着2000多年前一个封邑王国的城址,与其四代王侯的墓葬。
遗址博物馆选址东距墎墩墓700米,距离紫金城城址西侧边界约1300余米,位于海昏侯国遗址保护规划的建设控制地带之外。博物馆选址落置于一条丘陵山谷之中,有利于将其与连绵起伏的自然地形合为一体。

▲博物馆整体鸟瞰 ©姚力
遗址博物馆设计以考古研究为依据、以遗产价值为导向。将场地与周边的岗地、水系及反映先民生活、生产方式的农耕环境视作遗址风貌组成,遵循“整体保护,最小干预”的原则,保护遗址现状地形地貌与生态原真性。以低伏的建筑形态嵌入山谷地形,以延展的主入口广场衔接湖面水系。
建筑形体设计来源于海昏侯墓出土文物中遒劲飘逸的汉风线型,也与起伏地形的地脉走势相吻合;内部主要空间如同在大地中开挖出来,在地形嵌缝间引入天然采光;绝大部分屋面覆以绿植。建筑的形体空间还原于具有自然历史特征的风土环境。

地下(-4.0m)剖切平面

一层(+1.2m)剖切平面

夹层(+6.0m)剖切平面

二层(+8.0m)剖切平面


剖面模型
功能机制的形态学组织


▲博物馆南侧主入口 ©姚力
遗址博物馆是珍藏、展示海昏侯国遗址出土文物的一流场馆,是开展后续考古发掘、进行文物研究和修复工作的现场基地,也是开展文物知识普及和文化交流的重要场所。博物馆综合容纳了展示陈列、文物库藏、文化交流、考古研究、管理服务、后勤设备六大板块的完备功能,有序组织了多条功能流线,配置了先进的馆藏展示技术与设备系统。

▲博物序言厅 ©姚力


▲博物馆信息中心 ©姚力
海昏侯墓葬出土的文物中多次出现龙形图案,喻示着墓主人的显贵身份,其遒劲飘逸的线条展现了汉代艺术的典型风格和造型成就。博物馆的形态设计以此汉风线型为造型语汇,以三组相互环扣的游龙形态,创造出“虬龙潜野”的造型意象,并与丘陵山谷地形互为嵌扣,以若隐若现的“潜龙”形态,在起伏延绵的田野中,昭示出场地的内在特质。

三组游动于地形之中的线性体形互为环扣,将博物馆的六大功能有序分布其中,同时组织起场馆运行的各条流线,功能机制物化于建筑形态。各组形体与地形相互交织形成的庭院为相应的建筑内部带来自然的采光和通风。

▲功能与流线分析
绿色生态的建筑学路径
南昌汉代海昏侯国遗址博物馆的设计,应用绿色建筑“空间调节”设计策略,即注重通过合理有效的形体空间组织营造舒适的室内外环境,环境调控遵循“被动优先,主动优化”的原则,减少对动力设备的依赖和能耗需求,减少碳排放。
在总体环境设计中,尊重场地风土环境,充分利用地形,塑造浑然一体的大地景观。遵循“最小干预”原则,减少对原生地形地貌、地表生态的破坏,尽量保持遗址生态环境的原真性。

▲博物馆序言厅 ©姚力

▲博物馆序言厅热环境模拟

▲博物馆序言厅风环境模拟
博物馆屋面绝大部分采用植草覆盖,具有了较好的热绝缘和生态介质性能,建筑内部获得良好的热稳定性,有效降低空调系统能耗,同时使建筑复归于丘陵低岗的绿色地表之中。
展厅以外的公共空间尽可能利用天然采光和自然通风。博物馆序厅正对主入口长达70米的铜质主题浮雕全部为天窗照亮,在幽暗空间的尽端营造出如同地质空间般的特性;电动开启的天窗,也为这个最大的无柱空间带来柔和的自然通风。建筑的线性形体在地形中的穿插生成多个庭院,在观展的间隙提供开敞的自然视景,也优化了采光与通风模式。

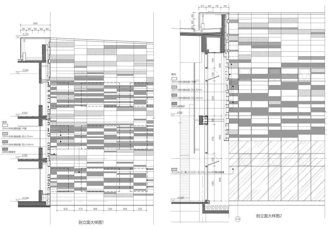
▲墙身大样
遗址博物馆全部采用干挂石材幕墙,在统一的模数控制中产生变化丰富、疏密有致的节律。在有外窗开启的功能段采用双层表皮,将幕墙与围护结构脱开,在与外窗对应的位置,以共同的设计节律开启孔洞,既实现了立面的统一和连续,又为多作东西朝向的外窗设置了遮阳,在赣北炎热的气候环境里屏蔽热辐射。

▲博物馆西立面与西侧入口 ©姚力
项目名称:南昌汉代海昏侯国遗址博物馆
项目地点:江西省南昌市新建区
项目规模:39250㎡
设计单位:万博manbetx官网 ,东南大学建筑研究所,东南大学建筑设计研究院有限公司
设计主创:张 彤
设计顾问:齐 康
建筑专业:袁 玮,严 希,李宝童,张四维
结构专业:韩重庆,孙 逊,李 亮
给排水专业:王志东,杨 妮
电气专业:周桂祥,屈建球
智能专业:张 磊
暖通专业:丁惠明,王若莹
景观专业:杨冬辉,崔 岚
室内专业:周 杰,李伟强
经济专业:胡寅倩
摄影版权:姚 力
供稿:建筑设计二院
编辑:品牌运营部
来源:“東大院”微信公众号

